
Progetto illuminotecnico: perché va pensato prima di ristrutturare casa
Quando si affronta una ristrutturazione di interni, una delle decisioni più sottovalutate – e allo stesso tempo più decisive – riguarda l’illuminazione.
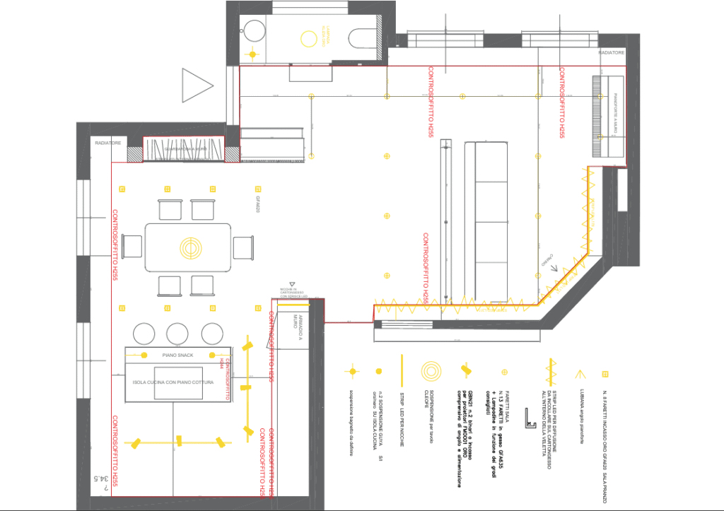
Spesso, infatti, le luci vengono considerate un dettaglio finale, mentre il progetto illuminotecnico dovrebbe essere studiato prima ancora di iniziare i lavori.
In realtà, progettare la luce in anticipo significa evitare errori difficili da correggere durante il cantiere o, peggio ancora, a lavori ultimati.
Per questo motivo, una corretta progettazione illuminotecnica incide direttamente sulla qualità, sul comfort e sul valore dell’intera ristrutturazione.
Noi di La Regola d’Arte, specializzati in ristrutturazioni chiavi in mano a Rimini, Riccione e in Emilia-Romagna, lo vediamo ogni giorno: una casa ben illuminata cambia radicalmente percezione e funzionalità.

Perché il progetto illuminotecnico va fatto prima dei lavori
Nel contesto di una ristrutturazione, ogni scelta è collegata: impianti, cartongessi, controsoffitti e arredi dialogano tra loro.
Di conseguenza, anche l’illuminazione influisce direttamente su tutte queste decisioni.
Progettare la luce prima permette quindi di:
- definire correttamente i punti luce
- evitare interventi correttivi successivi
- valorizzare volumi, materiali e superfici
- ottenere un risultato coerente e funzionale
In sintesi, un progetto illuminotecnico integrato nella ristrutturazione distingue una casa semplicemente rinnovata da una casa realmente progettata.
Il progetto illuminotecnico: molto più di “scegliere una lampada”
Scegliere un corpo illuminante senza un progetto significa, di fatto, decidere alla cieca.
Un vero progetto illuminotecnico, invece, prende in considerazione diversi aspetti fondamentali, tra cui:
- funzione degli ambienti
- intensità luminosa
- temperatura colore
- direzione della luce
- integrazione con luce naturale
Nelle nostre ristrutturazioni di interni a Rimini e Riccione, questo approccio fa la differenza tra un ambiente semplicemente “bello” e uno davvero confortevole e funzionale.
Illuminazione stanza per stanza: cosa valutare
Cucina
La cucina richiede una luce tecnica e precisa. In particolare, è importante prevedere::
- illuminazione generale uniforme
- luce diretta sui piani di lavoro
- corpi illuminanti sotto pensile
- LED ad alto indice di resa cromatica
- controllo dell’intensità luminosa

Soggiorno
Nel soggiorno, invece, la luce costruisce l’atmosfera.
Per questo, è consigliabile integrare:
- illuminazione diffusa
- luce d’accento su pareti e arredi
- dimmer per adattare la luce ai diversi momenti della giornata
- punti luce scenografici
Camera da letto
Nelle stanze da letto la luce deve favorire relax e benessere
Di conseguenza, suggeriamo sempre:
- luce calda e morbida
- punti lettura dedicati
- illuminazione regolabile
- equilibrio tra funzionalità ed emozione
Bagno
Anche nel bagno l’illuminazione va studiata con attenzione.
In questo ambiente, la luce deve garantire:
- illuminazione generale uniforme
- luce corretta allo specchio
- corpi illuminanti adatti e certificati
- atmosfera rilassante ma al contempo funzionale

Il valore aggiunto di La Regola d’Arte
La differenza, come sempre, sta nel metodo.
Noi di La Regola d’Arte integriamo:
- ristrutturazione di interni
- progetto illuminotecnico
- scelta dei corpi illuminanti
Tutto avviene nel nostro showroom Dettaglio a Rimini, dove accompagniamo il cliente nella scelta delle luci per creare un progetto coerente, armonioso e duraturo, sia dal punto di vista tecnico che estetico.
Un unico interlocutore.
Un unico progetto.
Un unico risultato.
Perché riceviamo solo su appuntamento?
Sappiamo che un progetto fatto bene richiede tempo, ascolto e attenzione.
Per questo, nel nostro showroom Dettaglio riceviamo solo su appuntamento, così da dedicare a ogni cliente la cura che merita, senza fretta e senza soluzioni standard.
Conclusione
Se stai pensando a una ristrutturazione di interni a Rimini, Riccione o in Emilia-Romagna, ricorda questo:
💡 l’illuminazione non è un dettaglio finale, ma una scelta strutturale.
Per questo va progettata prima di iniziare i lavori.
👉 Prenota una consulenza nel nostro showroom Dettaglio a Rimini
Scopri come progettare luce, spazi e materiali senza errori e senza ripensamenti.



